Splendida villa di lusso in stile Bauhaus, a 500 m dal mare in posizione privilegiata, vista mare
Villa in vendita a 500 metri dal mare. La superficie totale della casa è di 504,57 m2. La superficie netta è di...
1.350.000€
Pula
53291 Novalja, Croazia
In vendita
210.000€











Presentiamo due moderni edifici residenziali e commerciali di nuova costruzione con un totale di 11 appartamenti.
Il primo edificio residenziale è composto da 6 appartamenti.
La costruzione di alta qualità, le attrezzature di qualità, l’aria condizionata in tutte le stanze e la splendida vista sul mare rendono questo progetto eccellente per l’affitto turistico o per vivere tutto l’anno.
Si trova in un quartiere di immobili di lusso, a soli 300 m dalla spiaggia.
A2:
L’appartamento si trova al primo piano.
*Corridoio (6,40 m2) *Camera da letto 1 (10 m2) *Camera da letto 2 (15,70 m2) *Bagno 1 (4,50 m2) *Bagno 2 (4,50 m2) *Cucina, sala da pranzo, soggiorno – concetto open space con uscita sulla terrazza – (18,70 m2) *Terrazza coperta 1 (9,00 m2) *Terrazza coperta 2 (3,00 m2) *Parcheggio 1 (12,50 m2) *Parcheggio 2 (12,50 m2)
Superficie utile dell’appartamento = 84,30 m2
Superficie abitabile = 68,30 m2
PREZZO 240.000,00€
A3:
L’appartamento si trova al secondo piano.
*Corridoio (6,40 m2) *Camera da letto 1 (10 m2) *Camera da letto 2 (15,70 m2) *Bagno 1 (4,50 m2) *Bagno 2 (4,50 m2) *Cucina, sala da pranzo, soggiorno – concetto open space con accesso alla terrazza – (18,70 m2) *Terrazza coperta 1 (9,00 m2) *Terrazza coperta 2 (3,00 m2) *Parcheggio 1 (12,50 m2) *Parcheggio 2 (12,50 m2)
Superficie utile dell’appartamento = 84,30 m2
Superficie abitabile = 68,30 m2
PREZZO 240.000,00€
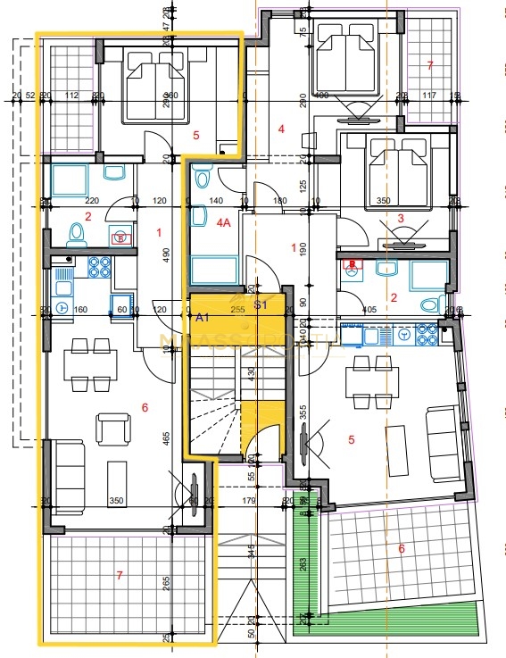
S1:
L’appartamento si trova al piano rialzato.
*Corridoio (6,40 m2) *Camera da letto 1 (10 m2) *Camera da letto 2 (15,70 m2) *Bagno 1 (4,50 m2) *Bagno 2 (4,50 m2) *Cucina, sala da pranzo, soggiorno – concetto open space con accesso alla terrazza – (19 m2) *Terrazza coperta 1 (9,00 m2) *Terrazza coperta 2 (3,00 m2) *Parcheggio (12,50 m2)
Superficie utile dell’appartamento = 78,20 m2
Superficie abitabile = 68,30 m2
PREZZO 270.000,00€
S2:
L’appartamento si trova al primo piano.
*Corridoio (6,40 m2) *Camera da letto (10,50 m2) *Bagno (4,90 m2) *Cucina, sala da pranzo, soggiorno – concetto open space con accesso alla terrazza – (22,20 m2) *Terrazza coperta 1 (8,00 m2) *Terrazza coperta 2 (3,00 m2) *Terrazza coperta 3 (7,00 m2) *Parcheggio (12,50 m2)
Superficie utile dell’appartamento = 74,50 m2
Spazio abitabile = 56 m2
PREZZO 190.000,00€
S3:
L’appartamento si trova al secondo piano.
*Corridoio (6,40 m2) *Camera da letto (10,50 m2) *Bagno (4,90 m2) *Cucina, sala da pranzo, soggiorno – concetto open space con accesso alla terrazza – (22,20 m2) *Terrazza coperta 1 (6,00 m2) *Terrazza coperta 2 (3,00 m2) *Terrazza coperta 3 (7,00 m2) *Parcheggio (12,50 m2)
Superficie utile dell’appartamento = 72,50 m2
Superficie abitabile = 54,50 m2
PREZZO 195.000,00€
Le planimetrie di tutti gli appartamenti con due camere da letto di questo progetto sono concepite per funzionare come un tutt’uno con due camere da letto, 2 bagni, un’ampia zona giorno a pianta aperta e due bagni. Il grande vantaggio è che tutto questo può essere adattato concettualmente in modo da trasformare l’appartamento in due unità abitative separate.
1. camera 1 con bagno e terrazza (vista mare sud-ovest)
2. bilocale con camera da letto, bagno, cucina, soggiorno con accesso alla terrazza (vista mare sud-ovest)
Questa opzione offre al potenziale acquirente l’opportunità di godere della propria proprietà e allo stesso tempo la possibilità di guadagnare con l’affitto turistico di un’altra unità abitativa.
NOTA: L’acquirente non paga l’imposta sulla vendita dell’immobile!
Novalja è un centro turistico e il porto centrale dell’isola di Pag.
Le bellezze naturali, tra cui spiccano le bellissime ed estese spiagge sabbiose nei pressi di Novalja, il piacevole clima mediterraneo, il ricco patrimonio storico-culturale, i vari intrattenimenti culturali e artistici, le attività sportive e ricreative, la cucina locale e gli ottimi collegamenti con la terraferma fanno di Novalja un’ambita meta residenziale e di vacanza.





Villa in vendita a 500 metri dal mare. La superficie totale della casa è di 504,57 m2. La superficie netta è di...
1.350.000€





Situate nella splendida città di Omis, queste due splendide ville offrono il perfetto connubio tra lusso e relax. A...
3.450.000€
Casa bifamiliare in una zona residenziale molto piacevole e tranquilla vicino a Zara
Owning a home is a keystone of wealth… both financial affluence and emotional security.
Suze Orman